Industrial Project

Dawson Road

Project Overview

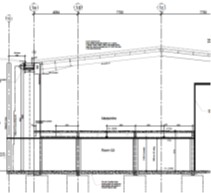
This project comprised the design and construct of a factory unit and a linking extension to provide a total of 31.5k sq ft of space with a 9m height. Lodge Park managed the full design process including obtaining planning permission for both buildings.

Initially the scheme consisted one 17k sq ft unit a link building to this and an existing unit being added part way through the contract. Lodge Park managed the planning process for this second unit and incorporated this into the overall design and programme. All works were undertaken whilst the existing building remained fully operational with shared access and storage areas.

Lodge Park also programmed early client access for specialist factory fitting out works. The buildings consist of steel framed structure with brick and profiled metal cladding to external walls and roof areas. The building also incorporates a first floor mezzanine structure and 2No specialist dock leveller installations. The work also included connection through to the existing live factory.

The external areas consist of new tarmac paved staff parking and alterations and extensions to existing insitu concrete yards, with underground foul and storm drainage.

Project Details

VALUE: £2,300,000

PERIOD: 47 weeks

CONTRACT: JCT D&B 

CLIENT: Highclare Properties Ltd

Contact Us

20 Kent Road, St Crispins Local Centre, Northampton, NN5 4DR

01604 926150

email@lodgepark.uk.com