
Project Overview
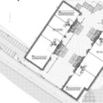
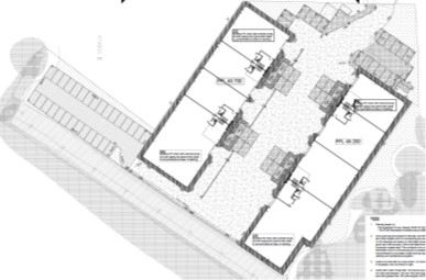
This project comprised the design and construction of a 8No light industrial units within two parallel buildings. The units comprised the constrution of 31,500 square foot of area with warehouse areas and first floor offices. External areas comprised concrete services yards, block paved parking, a permeable paved car park, and a tarmacadam link road to the main estate.
The building design consisted of a mono pitched steel framed structure 7m to haunch with profiled metal cladding and feature rendering and glazing to external walls and metal clad roof areas with insitu concrete ground floor slab to FM2 standard. Services installations comprised heating and lighting with plumbing air conditioning and power to office areas.
New services supplies were connected to existing supplies off site within the existing estate. Drainage comprised a pumped foul drainage connection and a SUDS storm and hard surfacing installation connecting to a 2000m3 stone attenuation tank with discharge into an adjoining brook.
Project Details
VALUE: £2,765,414
PERIOD: 27 weeks
CONTRACT: JCT D&B
CLIENT: Blakelands LLP
Contact Us
20 Kent Road, St Crispins Local Centre, Northampton, NN5 4DR
01604 926150
email@lodgepark.uk.com




